Terraced

Byron Road, Wealdstone, Harrow .

For Sale

£535,000

  • Terraced
  • Freehold

Byron Road, Wealdstone, Harrow

Property Features

Property Description

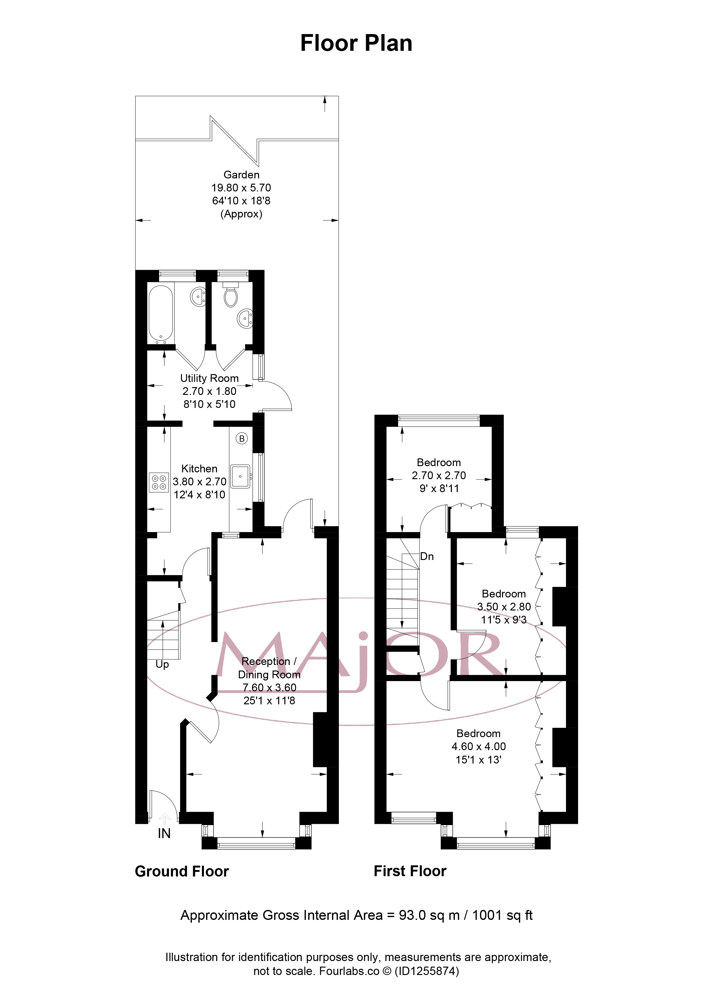
Spacious Three-Bedroom Mid-Terrace Home in Prime Harrow Location

This well-maintained three-bedroom mid-terrace property offers generously proportioned living space throughout, perfect for families or first-time buyers alike. The ground floor features a bright and spacious through lounge, a well-appointed fitted kitchen, and a bathroom with a separate W/C for added convenience.

Upstairs, the property boasts three well-sized bedrooms, each complete with fitted wardrobes, providing ample storage space.

Additional benefits include a private rear garden, off-street permit parking, and the advantage of no onward chain.

Ideally located within close proximity to Harrow & Wealdstone Station, residents enjoy excellent transport links via both the Overground and Bakerloo lines, along with a range of local amenities, schools, and shops nearby.

Key Features:

  • Three well-proportioned bedrooms (all with fitted wardrobes)
  • Spacious through lounge
  • Fitted kitchen
  • Bathroom with separate W/C
  • Private rear garden
  • Off-street permit parking
  • No onward chain
  • Excellent transport connections (Overground & Bakerloo lines)

Disclaimer

The property particulars are produced in good faith based upon information from the vendor and access for visual appraisal to provide a fair description of the property for the guidance of intending purchasers. These should not be construed as a contract or offer. All details and measurements are approximate and are only a general guide. Any intending purchasers should not rely on them as statements or representations of fact but must satisfy themselves by inspection or otherwise as to the correctness of each of them. Please note, we have not tested the bathroom fittings, kitchen appliances, central heating or electrical systems. If there is any point which is of particular importance to you, we will be pleased to see if we can get more information.

Mortgages

For a competitive, free, no obligation Mortgage quotation please contact our independent, in-house, whole of market FCA registered Mortgage adviser on 020 8424 8686. We deal with the whole market to find the appropriate residential or buy to let Mortgage deals according to your personal circumstances and subject to status. Your home is at risk if you do not keep up repayments on a mortgage or other loans secured on it. Life assurance may be required. Written quotations available

£535,000
bedrooms
Bedrooms
3
bathroom
Bathrooms
1
reception rooms
Reception Rooms
2

Please contact our independent, in-house, whole of market Mortgage Adviser on.

020 8424 8686
Free Valuation